Lauko durys "SATURN V01"

Durų varčios medinis pušies karkasas su sustiprintu plieniniu profiliu ir paviršiumi ąžuolo lukštu užtikrina puikų funkcionalumo ir estetikos derinį.
SATURN lauko durys – geriausių medžiagų derinys, garantuojantis aukščiausią lauko naudojimui skirtų durų kokybę.

Šilumos perdavimo koeficientas: Ud=1.1 W/m2K*
PN-EN 14351-1+A1:2010

Apsaugos nuo įsilaužimo klasė EN 1627 RC2
Užpildas - termoizoliacinis sluoksnis.

Atidarymo kryptis: Išorinė - kairinė/dešininė
Varčia su užlaida.

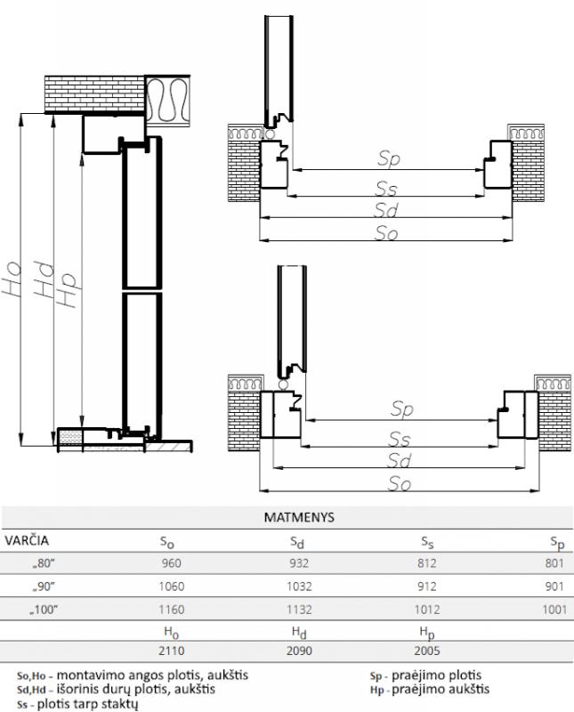
MATMENYS
"80" - rekomenduojamas angos plotis x aukštis: 960 x 2110 mm.
"90" - rekomenduojamas angos plotis x aukštis: 1060 x 2110 mm.
"100" - rekomenduojamas angos plotis x aukštis: 1160 x 2110 mm.

KOMPLEKTACIJA
Medinė durų stakta 100x60 mm
Ąžuolinis lakuotas slenkstis su aliuminio profiliu
A
psaugos nuo įsilaužimo sistema
Dviguba sandarinimo sistema (ant varčios ir staktos perimetro)
Trijose plokštumose reguliuojami varžtiniai vyriai sidabro spalvos - 4 vnt.
FUHR keturių taškų spyna
Rankena GARDA, cilindrai su
6 klasės užraktų apsauga

STANDARTINĖS SPALVOS
Dengiamieji dažai:
Ruda NCS S 8010-Y90R; Balta RAL9016; Antracitas RAL7016; Pilka RAL7047.
Skaidrūs dažai - pušis: Šviesus tikmedis; Tamsus tikmedis; Riešutmedis; Impregnantas; Sendintas ąžuolas; Sendintas alyvmedis; Iroko; Vyšnia; Sena pušis; Kiparisas; Akmeninė pušis; Afromosija; Raudonmedis; Sendintas tikmedis.

*Papildoma kaina: Dažymas pagal RAL, NCS spalvų paletes. Teirautis el. paštu.

Gamybos-pristatymo terminas: 20 - 40 darbo dienos

1930.00

Susisiekite su mumis:

info@idejosnamai.lt
+370 693 33327