Lauko durys "SATURN V3S2"

Durų varčios medinis pušies karkasas su sustiprintu plieniniu profiliu ir paviršiumi ąžuolo lukštu užtikrina puikų funkcionalumo ir estetikos derinį.
SATURN lauko durys – geriausių medžiagų derinys, garantuojantis aukščiausią lauko naudojimui skirtų durų kokybę.

Šilumos perdavimo koeficientas: Ud=1.1 W/m2K*
PN-EN 14351-1+A1:2010

Apsaugos nuo įsilaužimo klasė EN 1627 RC2
Užpildas - termoizoliacinis sluoksnis.

Atidarymo kryptis: Išorinė - kairinė/dešininė
Varčia su užlaida.

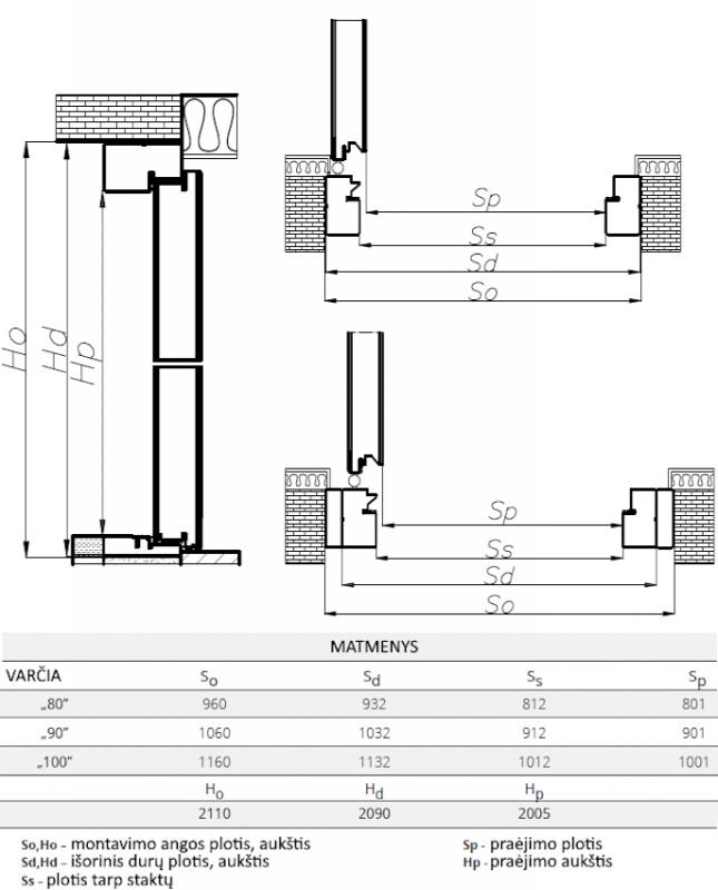
MATMENYS
"80" - rekomenduojamas angos plotis x aukštis: 960 x 2110 mm.
"90" - rekomenduojamas angos plotis x aukštis: 1060 x 2110 mm.
"100" - rekomenduojamas angos plotis x aukštis: 1160 x 2110 mm.

KOMPLEKTACIJA
Medinė durų stakta 100x60 mm
Ąžuolinis lakuotas slenkstis su aliuminio profiliu
A
psaugos nuo įsilaužimo sistema
Dviguba sandarinimo sistema (ant varčios ir staktos perimetro)
Vienos kameros stiklo paketas su Chromatech Ultra šiltu rėmu su apsaugos nuo įsilaužimo klase P4
Trijose plokštumose reguliuojami varžtiniai vyriai sidabro spalvos - 4 vnt.
FUHR keturių taškų spyna
Rankena GARDA, cilindrai su
6 klasės užraktų apsauga

STANDARTINĖS SPALVOS
Dengiamieji dažai:
Ruda NCS S 8010-Y90R; Balta RAL9016; Antracitas RAL7016; Pilka RAL7047.
Skaidrūs dažai - pušis: Šviesus tikmedis; Tamsus tikmedis; Riešutmedis; Impregnantas; Sendintas ąžuolas; Sendintas alyvmedis; Iroko; Vyšnia; Sena pušis; Kiparisas; Akmeninė pušis; Afromosija; Raudonmedis; Sendintas tikmedis.

*Papildoma kaina: Dažymas pagal RAL, NCS spalvų paletes. Teirautis el. paštu.

Gamybos-pristatymo terminas: 20 - 40 darbo dienos

1930.00

Susisiekite su mumis:

info@idejosnamai.lt
+370 693 33327