Nematomos durys "SARA ECO 2" 2400-2455mm, Dažytos RAL9001

"SARA ECO 2" – durys yra novatoriškas sprendimas, leidžiantis kūrybiškai kurti interjerą naudojant nematomas duris, suteikiant galimybę varčių paviršių apdailinti sienų spalvomis. Paslėpti durų vyriai įmontuoti į varčią ir staktą, yra matomi tik kai durys atidarytosDurys su paslėptu rėmu montuojamos sienoje, kurios storis ne mažesnis kaip 60 mm, todėl tinka daugumai pertvarų ir laikančiųjų sienų. Dėl paslėpto karkaso, kuris užmaskuotas tinku arba gipso kartono plokštėmis, sprendimą juos įterpti geriausia priimti sienų statybos etape. Angos dydis turi būti pritaikytas prie durų matmenų.

PADENGIMAS: Akrilinis UV lakas - RAL 9001

VARČIOS APRAŠYMAS
Durų varčios rėmas pagamintas iš spygliuočių medienos, užpildas kartoninis korys, perforuota MDP plokštė, pilna MDP plokštė. Išorė HDF plokštė. Su kištukiniais lizdais ISTAR paslėpties vyriams.
Varčia be užlaidos (atsidaro į išorę), su užlaida (atsidaro į vidų).

VARSTYMO KRYPTIS: Pasirenkama "kairiniam", arba "dešininiam" varstymui.

VARČIOS MATMENYS

Aukštis: 240 cm.
Plotis: 62 cm; 72 cm; 82 cm; 92 cm.
Storis: 4 cm.

STAKTOS APRAŠYMAS
Aliuminio durų stakta po montavimo yra nematoma, įmontuota į angas arba apdorota gipso kartono plokštėmis. Po mūro apdirbimo matosi tik rėmo įpjova, paruošta dažymui, pvz., sienų spalva.
Galima pasirinkti aliuminio staktą nedažytą, arba dažytą balta spalva RAL9003, Juoda spalva RAL9003.

IŠORINIAI STAKTOS MATMENYS
Plotis: 70,1 cm; 80,1 cm; 90,1 cm; 100,1 cm; 110,1 cm.
Aukštis: 244,8 cm.
Praėjimo plotis: 60,5 cm; 70,5 cm; 80,5 cm; 90,5 cm; 100,5 cm.

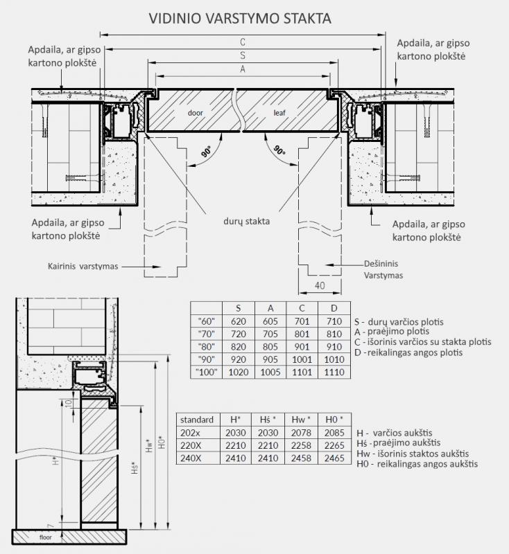
VIDINIO VARSTYMO IŠORINIAI STAKTOS MATMENYS
Plotis: 70,1 cm; 80,1 cm; 90,1 cm; 100,1 cm; 110,1 cm.
Aukštis: 245,8 cm.
Praėjimo plotis: 60,5 cm; 70,5 cm; 80,5 cm; 90,5 cm; 100,5 cm.

SPALVA: ECRU RAL-9001

STANDARTINIAME DURŲ KOMPLEKTE
Varčia, aliuminė stakta, magnetinė spyna, paslėpti 4 vnt. vyriai.  

PAPILDOMAI GALIMA UŽSAKYTI: Rankenų komplektą; WC užraktą; Cilindrinį užraktą su apyrakčiu.

PRISTATYMO KAINA IR TERMINAS:
Lietuvoje - 9,99 Eur (20 - 40 darbo dienos)
Į kitas Europos valstybes - nuo 19,99 Eur (23 - 45 darbo dienos)

570.00

Susisiekite su mumis:

info@idejosnamai.lt
+370 693 33327